YOU BEGIN AS A CLIENT, YOU BECOME A FRIEND

ABSOLUTE PRINCES HIGHWAY FRONTAGE

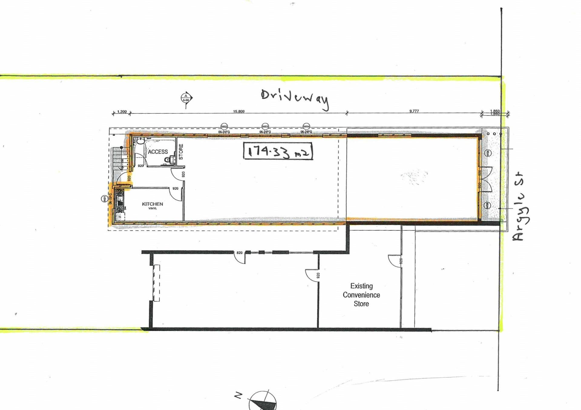
* Modern showroom/retail outlet of 174m2.

* Substantial on-site car- parking or storage area at the rear.

* Very adaptable building - could be consulting rooms or offices or multitude of retail activities.

* Current Tenant outgrown the property and is relocating.

* Take your pick:

                         1. Take over existing lease to February 2023 + Options

                        2.  Have new 3 x 3 or 5 x 5 year lease

* Prominent location - seldom found.

 

 

6
Address 166 Argyle Street, Traralgon
Price 27,000 p.a. + GST + Outgoings
Property Type Commercial
Property ID 2708
Category Industrial/Warehouse
Warehouse Area 174m2

Agent Details

Ted Addison photo

Ted Addison

0427 512 378
View Profile