analytics

YOU BEGIN AS A CLIENT, YOU BECOME A FRIEND

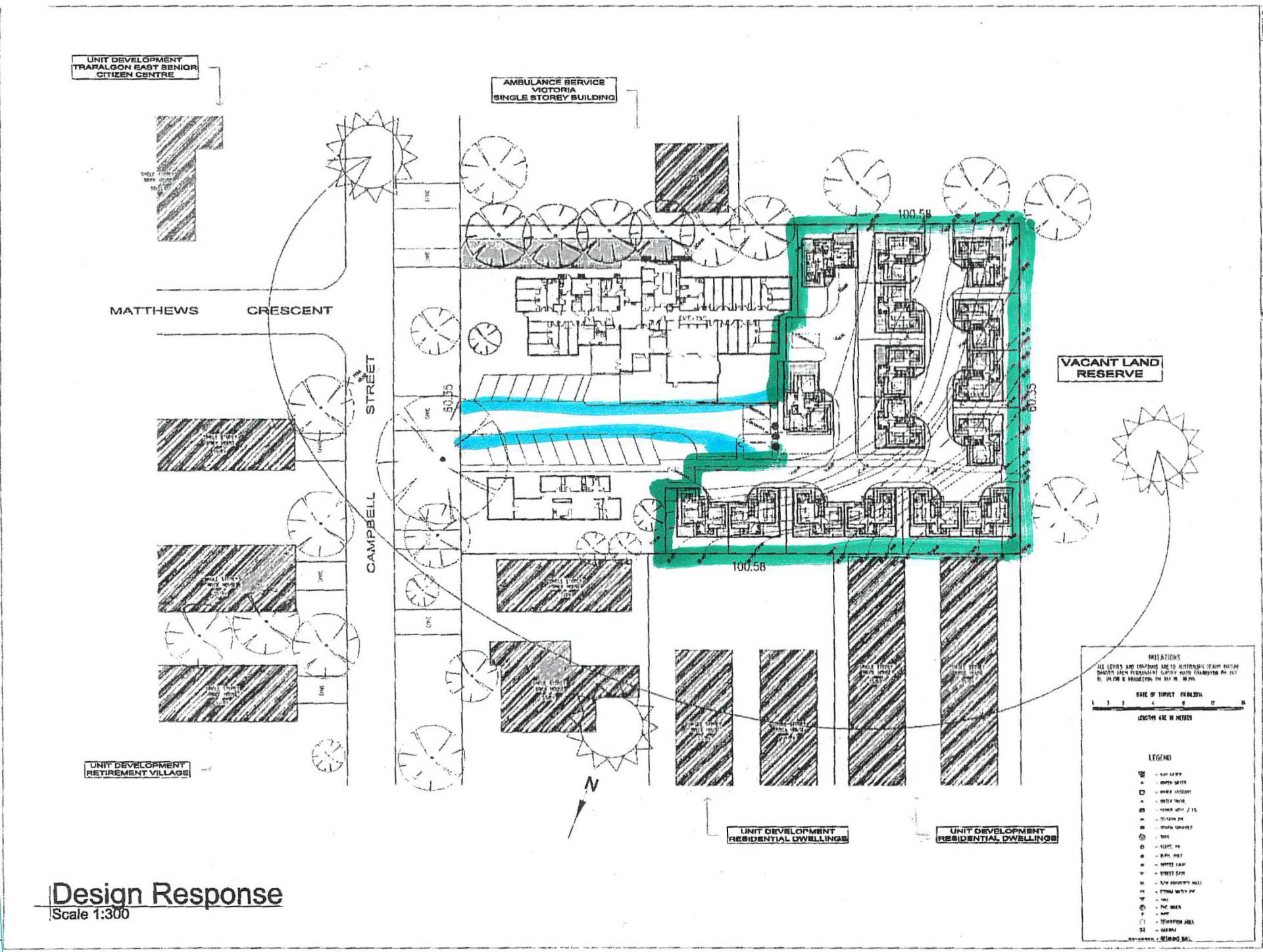
DOUBLE BONUS - INVESTMENT OPPORTUNITY

* 6,000m2 allotment exceptionally close to the city centre

* Comprising Prescribed Accommodation Residence

PLUS

Managers 4 bedroom residence

Rent: $130,996pa

Agreed Lease to 2029*

* Planning approval for 16 unit strata development on the BALANCE of the land

* Act fast on this fabulous package

 

Address 7-11 Campbell Street, Traralgon
Price SOLD for $2,000,000
Property Type Commercial
Property ID 2276
Category Other, Land/Development
Land Area 6,000 m2

Quick Links

Agent Details

Ted Addison photo

Ted Addison

0427 512 378
View Profile